Welcome to our new website! We are actively working to add missing content and fix broken links, so please check back throughout the week. We apologize for the inconvenience.

Give Now

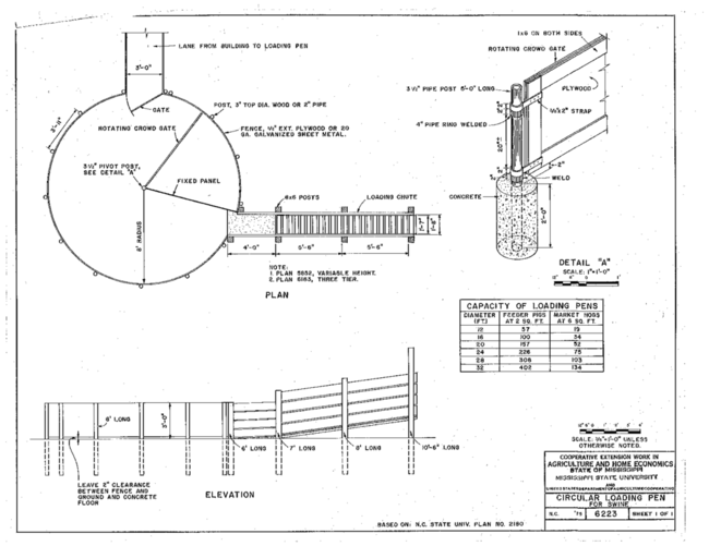
6223

Circular Loading Pen for Swine

The Mississippi State University Extension Service is working to ensure all web content is accessible to all users. If you need assistance accessing any of our content, please email the webteam or call 662-325-2262.

Download

6223

Circular Loading Pen for Swine

188.6 KB

Mississippi State University Extension 130 Bost Drive Mississippi State MS 39762